
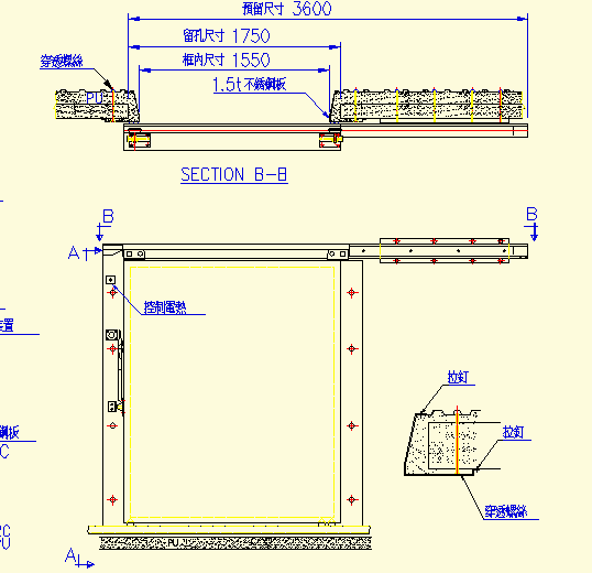
雙開式鹽化鋼板側拉門

產品特色說明
本產品完全採用高級進口不銹鋼材質,嚴密之品質管制,產品優良,堅固耐用。適用於各式冷凍食品廠、倉儲業及特殊用途之使用。
♦ 安全把手 :本公司所研發之專利產品,為人員於庫內開啟庫門時使用。
♦ 電熱線 :按裝於門框內側,防止結凍。底部特別使用鋁合金,可保護電熱線
防止失效時更換。
♦ 金具 :可能範圍全部鍍鋅防銹處理及使用#304不銹鋼板。
♦ 柏根(P.K.) :合成塑膠製品,其庫門之橡膠為防水耐寒之材質。
♦ 軌道 :本公司所研發之專利產品,為省力之結構,利於人員於開啟庫門時使用。
以上資料僅供參考


